Ruth

4,695 SQ.FT.

4 BED | 5.5 BATH

Where love rests. Ruth is the home that sits between cozy and spacious, offering just the right amount of space for comfort and everyday living. Its thoughtful details and open, welcoming rooms create a home that’s warm, functional, and ready for life as you live it. It’s a home you’ll truly love to call your own.

BEAUTY IN EVERY VIEW

A Deeper Dive

    • Contemporary, modern exterior design

    • Customizable interiors with premium finishes

    • Dedicated chef’s kitchen

    • Energy-efficient design with sustainable construction

    • Family room fireplace and second floor skylight

    • Finished basement ideal for recreation and entertaining

    • Integrated smart home technology

    • Open-concept layouts with high ceilings

    • Walkout basement to backyard and deck

  • Backyard: Yes

    Bathrooms: 5.5

    Bedrooms: 4

    Ceiling Heights:

    • 9' basement

    • 11' ground floor

    • 10' second floor

    Garage: 2-car

    Square Footage: 4,695 sq. ft.

    • Basement: 2,525 sq. ft.

    • Ground: 2,525 sq. ft.

    • Second: 2,431 sq. ft.

    • Garage: 654 sq. ft.

Warranty Details

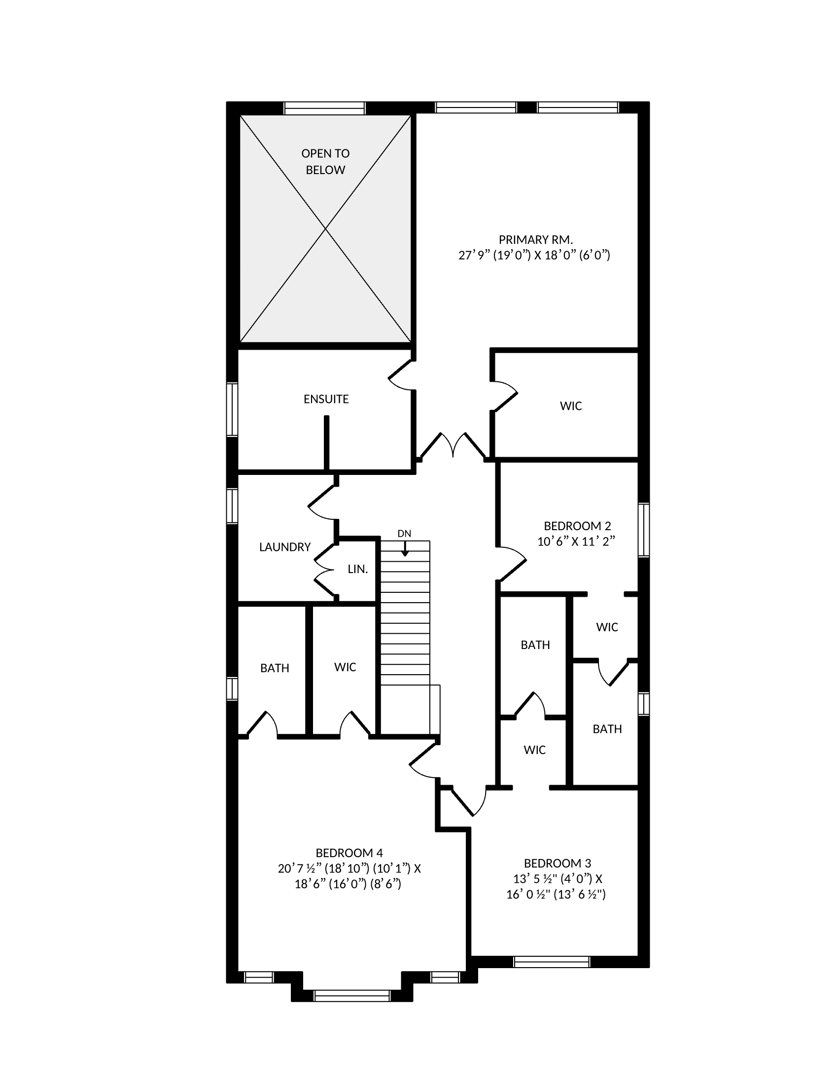
RUTH LAYOUT

  • Includes:

    • (2) Storage Closets

    • Cold Room

    • Full Bathroom

    • Furnace Room

    • Media/Theater Room

    • Recreational Room

    • Walkout to Backyard

  • Includes:

    • Deck

    • Dining Room

    • Family Room

    • Front Porch

    • 2-Car Garage

    • Kitchen

    • Living Area

    • Prep Kitchen & Servery

    • Powder Room

    • Walk-In Closet

  • Includes:

    • (1) Primary Room, equipped with an Ensuite & Walk-In Closet

    • (3) Secondary Rooms, each equipped with a Full Bathroom & Walk-In Closet

    • Laundry Room & Linen Closet

See the POssibilities

Every interior can be customized to reflect your tastes. Take a look at these inspiration images to see potential layouts and design elements, giving you a sense of what your home could become.

Like what you see?

CHECK OUT OUR OTHER HOuses

EDEN
TABOR

Get in touch.

Set up an information session on the house you are interested in purchasing.